Two Cottages in Croyde | Perfect for Extended Families
CH 201620362Sleeps
 
        Bathrooms
 
        Bedrooms
 
          Pets
 
            HotTub
Changeover
 
          Description
PROPERTIES:
ROCKPOOL
Bright and airy lounge with laminate underfloor heating throughout, two beautiful rich blue sofas and occasional chairs with views out onto the front garden. Wall mounted flat screen TV and storage. French doors onto the rear garden's decking.
The kitchen has crisp clean newly installed modern pale green units and a white work surface. integrated hob, electric oven, dishwasher, fridge freezer, microwave oven, toaster, kettle as well as all the other essential kitchen utensils you would require. Dining area features a large dining table with seating for 8 that enjoys views through the large French doors out onto the rear decking.
Downstairs bathroom with a W.C and washbasin.
Hallway cupboard with washing machine and tumble dryer.
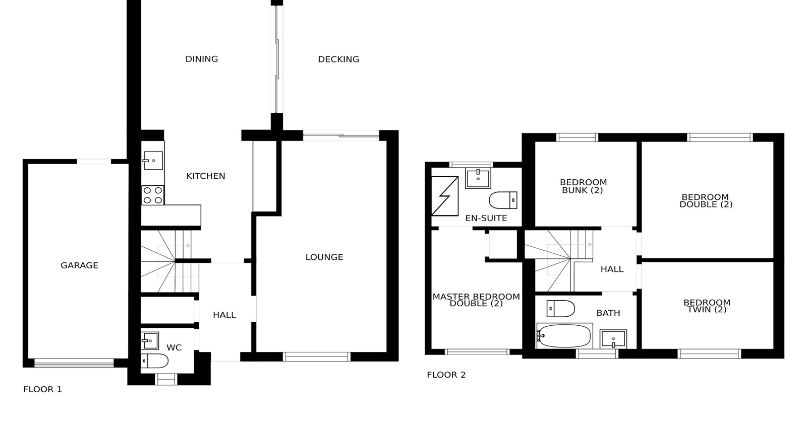
1ST FLOOR
- Master bedroom- Double bed, views of the countryside towards Croyde beach with white bedside tables, clothes storage and an en-suite modern shower room with W.C, double walk in shower and washbasin.
- Bedroom two - Double bed, bedside tables, chest of drawers and full length mirror.
- Bedroom three - Bunk bed and chest of drawers.
- Bedroom four - Twin beds with sea glimpses of Croyde and chest of drawers.
The family bathroom comprises of a bath with shower over, pedestal washbasin and W.C.
OUTSIDE SPACE
Garden furniture and BBQ is provided for al fresco dining. Fully enclosed rear garden that wraps around the rear of the property comprising of a small rear terrace patio, outside shower, raised decking area and part garage storage with plenty of secure storage for surfboards, wetsuits or bikes.
PROPERTIES:
OCEANSIDE
Lounge diner with a pale blue two seater sofa and matching arm chairs, skandi coffee table, LCD flat screen TV with Sky and Netflix. A dining table is nestled to one end with seating for six. French doors lead out onto the rear enclosed garden with a patio terrace.
The kitchen has a hob, electric oven, fridge freezer, dishwasher, washer dryer, toaster, kettle as well as all the other essential kitchen utensils you would require with a door and steps leading out to the rear garden.
Downstairs shower room with a W.C, washbasin and shower enclosure.
1ST FLOOR
- Master bedroom- Kingsize bed, bedside tables, chest of drawers, wall mounted mirror and hanging rail.
- Bedroom two - Twin beds, bedside tables and chest of drawers.
- Bedroom three - Small bunk beds for children/teens
The family bathroom comprises of a bath with shower over, washbasin and W.C.
OUTSIDE SPACE:
Garden furniture and coal BBQ is provided for al fresco dining. Fully enclosed rear garden which is partly laid to lawn, there is a rear terrace patio and a garage which is accessible via the rear with secure storage for surfboards, wetsuits or bikes.
Amenities
| Living Space | Wi-Fi Freeview Board Games | Large LCD TV Netflix Enabled Underfloor Heating | 
| Kitchen Facilities | Electric Hob & Oven Fridge Freezer Microwave Washing Machine Cooking & Baking Essentials | Dishwasher Cafetiere Slow Cooker Tumble Dryer | 
| Outside Space | Garden Furniture Bike Storage Driveway Parking (3 cars) | Coal BBQ Wetsuit / Surfboard Storage | 
| Miscellaneous | Linen Provided Ensuite Bathroom Clothes Airer | Towels Provided Ironing Board and Iron | 
| For Children | Highchair Stair Gate Board Games | Travel Cot Toddler Cutlery Set | 
| Distances | Walk to the Beach Walk to Places to Eat | Walk to Village Centre | 
| Type & Access | Steps with Handrail to Access Property | 
Rates
Holiday Enhancements
- Late Departure (6pm) - £140 (breaks ending on a Sunday & subject to availability)
Additional Booking Information
Check-in time; from 4 pm | Check-out time; 10am
30% of the rental and non-refundable booking fee is required to secure the booking with the balance due 7 weeks prior to arrival. Holiday extra requests are subject to availability, please order at time of booking.
Availability
Map
Local Amenities Nearby
BAR: Croyde Pubs & Restaurants - 650 metres
GOLF: Saunton Golf Club - 2.4 miles
VILLAGE: Braunton - 4.4 miles
TRAIN STATION: Barnstaple - 10.3 miles































